RTO技术优点:
??操作费用低,超低燃料费。有机废气浓度在2000PPM以上时,RTO装置基本不需添加辅助燃料。净化率高,净化率一般在98%以上。可实现全自动化控制,操作简单,运行稳定,安全可靠性高。不存在因压力变化产生的脉冲现象。蓄热室内温度均匀分级增加,加强了炉内传热,换热效果更佳,炉膛容积小,降低了设备的造价。
??采用分级燃烧技术,延缓状燃烧下释出热能;炉内升温匀,烧损低,加热效果好,不存在传统燃烧过程中出现的局部高温高氧区,抑制了热力型氮氧化物(NOX)的生成,无二次污染。
??废气进口设置惰性氧化铝瓷球,对蓄热陶瓷起到保护、缓冲、过滤的作用,延长蓄热陶瓷的使用寿命。
RTO适用场合:
??RTO处理技术适用于高浓度有机废气、涂装废气、恶臭废气等废气净化处理;适用于废气成分经常发生变化或废气中含有使催化剂中毒或活性衰退的成分(如氺银,锡,锌等的金属蒸汽和磷、磷化物,砷等,容易使催化剂失去活性;含卤素和大量的水蒸气的情形),含有卤素碳氢化合物及其它具腐蚀性的有机气体。RTO一般适用于处理浓度在5000~20000mg/m3的多种有机废气。
RTO原理:
在正常生产过程中,RTO废气燃烧设备与含浸设备相配合,
将含浸设备排出的含有丙酮等有机溶剂的混合物废气在760℃以上进行氧化处理,
使其将热能释放出来。释放出来的热能再将导热油进行加热,
向含浸设备提供正常生产所需的热量。
含浸设备排出的废气经过RTO废气燃烧设备处理以后,
98%以上的有效成份都被氧化分解,最终从烟囱排出近似洁净的气体。
因此RTO废气燃烧设备是高效的节能环保设备。
RTO的分类:
依据目前RTO的结构形式,
可将其分为:旋转式和多塔式两种形式。
其中多塔式RTO废气燃烧炉依据塔数的多少可有双塔式、三塔式甚至更多。
由于双塔式RTO结构简单,造价较低,性价比高,
因此在多塔式RTO废气燃烧炉中以双塔式最为常见。
RTO的工作原理:
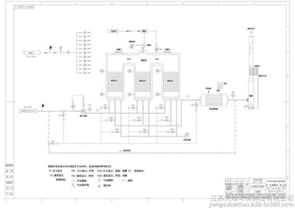
双塔式RTO废气燃烧炉有A、B两个塔,我们称之为AB炉。
在AB炉内均装有大量的蓄热陶瓷,同时AB炉各有一台燃烧机和一只废气切换阀。
当A炉废气切换阀将A炉与上胶机排出的废气接通时,
则B炉废气切换阀就会将B炉与烟囱接通。
这时上胶机排出的含有丙酮等有机溶剂的混合物废气
(其温度通常在120—150℃)由A炉进入RTO废气燃烧炉,
废气经过A炉内蓄热陶瓷时被加热,并在炉膛中氧化分解释放出热能。
在循环风车的作用下,炉膛中的高温气体一部分经过热油交换器将导热油加热,
若此时陶瓷温度低于其设定值,
则通过热油交换器的这部分高温气体又被送回炉膛中,
若此时陶瓷温度高于其设定值,则将这部分高温气体直接排向烟囱。
在废气经A炉进入炉膛的同时,炉膛中的高温气体则由B炉排至烟囱,
同时对B炉内的蓄热陶瓷进行加热。
这样,A炉内蓄热陶瓷由于加热废气,其温度会漫漫降低,
而B炉内的蓄热陶瓷温度会漫漫升高。
一段时间后(通常为2—3分钟),B炉废气切换阀将B炉与上胶机排出的废气接通,
A炉废气切换阀将A炉与烟囱接通,废气由B炉进入RTO废气燃烧炉,
当经过B炉内蓄热陶瓷时被加热,
氧化分解后由A炉排出时又对A炉内的蓄热陶瓷再次进行加热,如此循环。
当上胶机排出的废气中可燃气体浓度达一定程度时,
RTO废气燃烧炉不需要额外补充热能就可满足正常生产,即不需要消耗天然气或柴油等能源。
当RTO废气燃烧炉升温时或上胶机排出的废气中可燃气体浓度不足时,
燃烧机开始持续或间断工作,依靠燃烧天然气将炉温维持在设定温度。
RTO工作示意图:

RTO的控制:
1、RTO的状态:
RTO有升温、待机、正常运转、降温、逆洗、测试等状态,
这些状态是由PLC的寄存器D90的数值决定的。
2、RTO的启动:
按下RTO的启动按钮,RTO开始启动并首先进入测试状态。
在测试状态中,RTO依次启动各台马达并对所有风阀依次进行打开与关闭试验。
如果测试不能通过,RTO将会停留在测试状态下并进行报警。
如果测试顺利通过,RTO将开始点火进入升温状态。
在升温状态下,RTO将会对陶瓷和导热油进行加热,
当达到条件后自动转入正常运转或待机状态。
3、升温与正常运转的转换条件
升温状态与正常运转之间的转换是由炉温、油温以及陶瓷温度决定的,
其转换条件如下:
4、RTO的逆洗条件
RTO要进入逆洗,E、F机必须均处于停机状态。
只要有一台上胶机处于升温或开机状态,RTO就不能进入逆洗状态。
E机:
升温:M710、M720风机运转
运转:物料启动
F机:
升温:风机、油泵开启
运转:物料启动
5、RTO的燃烧控制:
点火过程:
点火变压器通电---火花塞点火---点火电磁阀打开---
火焰探头检测到火焰---主阀打开---断开点火变压器和点火电磁阀。
火力大小控制:
PLC依据设定值通过DA模块输出4-20mA信号控制助燃风伺服电机开度,
并利用助燃风压控制燃气主阀的开度,使燃气主阀与助燃风成比例开大或关小。
助燃风机控制:
助燃风机在点火状态时风频自动以50Hz运转,
在熄火状态时风频自动以20-25Hz运转。
6、RTO的炉温控制
炉温是A炉与B炉的平均炉膛温度,在正常情况下:
当实际炉温<设定炉温-点火温差时,RTO开始点火;
当实际炉温> 设定炉温+熄火温差时,RTO熄火;
如果有陶瓷温度超过900℃时,RTO点火不受点火温差控制,
只有当炉膛温度下降至710 ℃时才开始点火。
7、RTO的油温及循环风车控制
在正常运转状态下,RTO的油温是依靠改变循环风车的频率来控制的。
当热油温度降低时,循环风车的频率就会加大,
流过热交换器的热风流量加大,使热油温度提高;
反之,当热油温度过高时,循环风车的频率就会降低,流过热交换器的热风流量减小,
使热油温度降低。
因此,在正常运转状态下,循环风车的频率取决于热油温度。
在其它状态下,循环风车依据设定的频率运转,与热油温度无关(不受热油温度影响)。
8、RTO的陶瓷温度与炉内风门、烟囱风门的控制
当废气经由A炉进入炉膛时,废气吸收了A炉陶瓷的热量,废气被加热,而A炉中陶瓷温度会降低.
此时炉膛中的高温烟气经由B炉排出,从而对B炉中的陶瓷进行加热,使B炉陶瓷温度升高。
一段时间后,废气切换阀进行切换,使废气经由B炉进入炉膛,而炉膛中的高温烟气经由A炉排出,如此循环。
当被加热侧的陶瓷温度低于其对应的设定温度时,炉内风门打开,烟囱风门关闭,对陶瓷进行加热;
当被加热侧的陶瓷温度高于其对应的设定温度时,炉内风门关闭,烟囱风门打开,将热量尽可能排出,以减少对陶瓷的加热作用。
第三层陶瓷设定温度最高为850 ℃。
10、废气风阀与上胶机状态的关系(RTO升温或正常运转状态下)
当两台上胶机均处于停止状态时,两只废气风阀均不打开。(RTO单独升温或待机)。
当只有一台上胶机处于升温状态时,与升温上胶机对应的废气风阀打开。
当两台上胶机均处于升温状态时,仅只打开E机废气风阀。
当有一台上胶机处于开机状态时,另一台上胶机处于升温或停止状态,与开机上胶机对应的废气风阀打开。
当两台上胶机均处于开机状态时两只废气风阀均打开。
11、RTO热旁通阀的控制
当炉温超过热旁通动作炉温设定值时,热旁通阀自动打开。(最大设定值999 ℃)
当陶瓷温度超过热旁通动作陶瓷温设定值时,热旁通阀自动打开。(最大设定值1030 ℃).
当陶瓷温度超过1050 ℃时,自动关闭F机废气风阀。
焚烧炉流程图:

公司介绍
?苏州天皓环保科技有限公司是一家致力于环境科学研究及污染治理的综合性高新技术企业。公司注册资金2000万元,拥有在职职工170多人;专业技术人员占总职工人数的40%,高级工程师8人,工程师21人,中高级技师7人,高级项目管理师4人,环境监理工程师12人。拥有环境工程设计资质、环境保护设施运营资质和专业环境工程承包资质等,并通过了ISO9001,ISO14001管理体系等多项认证。
??公司每年以巨资引进美国、德国、日本的新型环境污染治理技术,于2010年成立了科研技术转化基地及环保工程研发中心。为我国废气治理、废水治理、节能环保提供了有效途径和技术依据,颠覆了国内传统工艺。
??公司专业从事工业废气治理及除臭,废水治理一体化系统,高效节能技术和装备,污染治理系统营运托管服务。承接总体工程项目的设计和建设、设备加工和供货、设施运营和维护、技术咨询和营运托管业务。
??公司以安全、高效、经济、实用为核心,公司不断的研发新的高新技术,以先进的技术工艺、高性价比、完善的售后服务体系取的了良好的社会效益,为人类环保事业做出巨大的贡献。以高度的社会责任感、国际领先的技术水平,与有识之士共同携手,应对日益凸显的环境挑战,捍卫美丽中国!



